
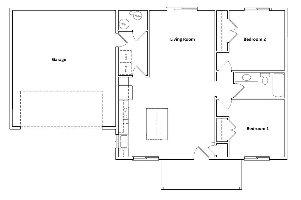
Discover the rustic charm of the Aspen with Manitou Homes, boasting 1020 sq ft of cozy living space. This captivating cottage boasts 2 bedrooms, 1 bathroom, a full kitchen, and a 2 car garage. Gleaming stainless steel appliances, black fixtures/hardware, and granite countertops create a warm, inviting atmosphere. Immerse yourself in the serene beauty of the great outdoors from your private sanctua
.jpg/:/cr=t:0%25,l:0%25,w:100%25,h:100%25/rs=w:1023,cg:true)
Copyright © 2025 Manitou Homes - All Rights Reserved.
We use cookies to analyze website traffic and optimize your website experience. By accepting our use of cookies, your data will be aggregated with all other user data.